Dit exclusief appartement is gelegen in de voormalige veeartsenschool van Anderlecht, in een volledig ommuurd en privaat parkdomein van 3,5 hectaren tussen groen, eeuwenoude bomen en prachtige gebouwen.
Op wandelafstand van o.a. het centrum van Brussel, het Zuidstation (Thalys en TGV) en ideale bereikbaarheid met wagen en openbaar vervoer.
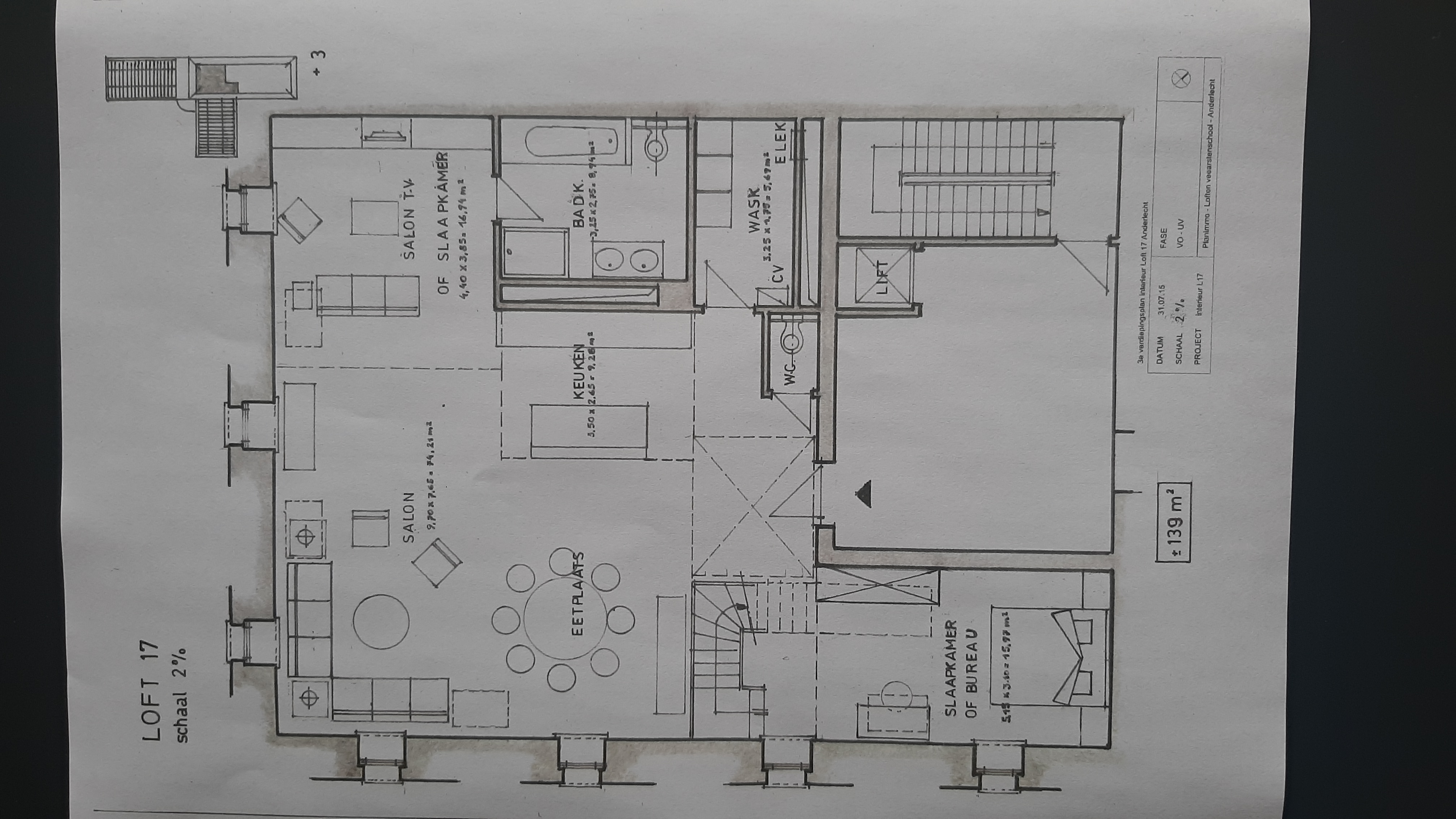
Gelegen op de 3de verdieping onder het dak, biedt dit appartement +/- 194 m² en baadt letterlijk in het licht dankzij de talrijke ramen en de indrukwekkende dakkoepel.
Indeling: open inkomhal, apart toilet, berging/wasplaats, open ingerichte keuken uitgevend op de woonkamer van +/- 75 m², ruime badkamer met ligbad, douche en dubbele lavabo en toilet, een TV zithoek of ruimte voor een slaapkamer van +/- 17 m², een slaapkamer van +/- 16 m² of kantoorruimte, prachtige mezzanine van 55 m² verdeeld in een bureauruimte van +/- 6 m², een centrale ruimte van +/- 20m², een ruimte voor een slaapkamer van +/- 12m², en een berging van +/- 16 m². ( zie foto's van de plannen )
Niet inbegrepen in de verkoopprijs:
-Aansluitkosten (opening van gas/electriciteit/watermeters): 4.825 €.
-12,5% registratie rechten
Inbegrepen in de verkoopprijs:
-kelder
-een gemeenschappelijke fietsenstalling.
-Gratis parkeren op het landgoed.
Meer informatie en bezichtigingen via 078/ 48 47 00 of info@ap-p.be.
4129 keer bekeken
- Nettoprijs
- € 495.000
- Beschikbaarheid
- Vanaf akte
- Bewoonbare opp.
- 194,0 m²
- Constructie
- Gesloten
- Bouwjaar
- 2015
- Staat
- Gerenoveerd
- Verdieping
- 3
- Type dak
- Platdak
- Slaapkamers
- 2
- Badkamers
- 1
- Toiletten
- 2
- Kelder
- Ja
- Buitenparking
- 1
- Elektriciteit
- Ja
- Lift
- Ja
- Aansluiting gas
- Ja
- EPC
- 193 kWh/m²
- EPC unieke code
- 201805020000526843011
- Datum EPC certificaat
- 02 mei 2018
- Beglazing
- Dubbele beglazing
- Verwarming
- Gas
- Type verwarming
- Individueel
- Bouwvergunning
- Ja
- Voorkooprecht
- Ja
- Overstromingsrisico
- Niet gelegen in een overstromingsgevoelig gebied
Buurtinformatie
| Gemiddelde leeftijd in de buurt | 31 jaar |
|---|
Schat uw maandelijkse afbetaling
Uw maandelijkse afbetaling zou bedragen.
Deze berekening is louter informatief en niet bindend.
Ik ben geïnteresseerd


Philippe Leplat
philippe@ap-p.be
+32 78 48 47 00
































