Exemple de maison neuve à construire avec Verelst sur ce beau terrain situé à quelques centaines de mètres de la British School et du Musée de l'Afrique de Tervuren.
Le terrain orienté sud à une largeur côté rue de +/- 15,50 m sur une profondeur de +/- 61 m pour une superficie totale de +/- 925 m².
Sous réserve de l'obtention d'une attestation d'urbanisme, ce terrain est propice à la construction d'une maison 4 façades de maximum +/- 9,50 de large sur 15 m de profondeur au rez-de-chaussée et 12 m de profondeur au premier étage. Possibilité d'un deuxième étage sous toiture ou un seul étage avec toit plat.
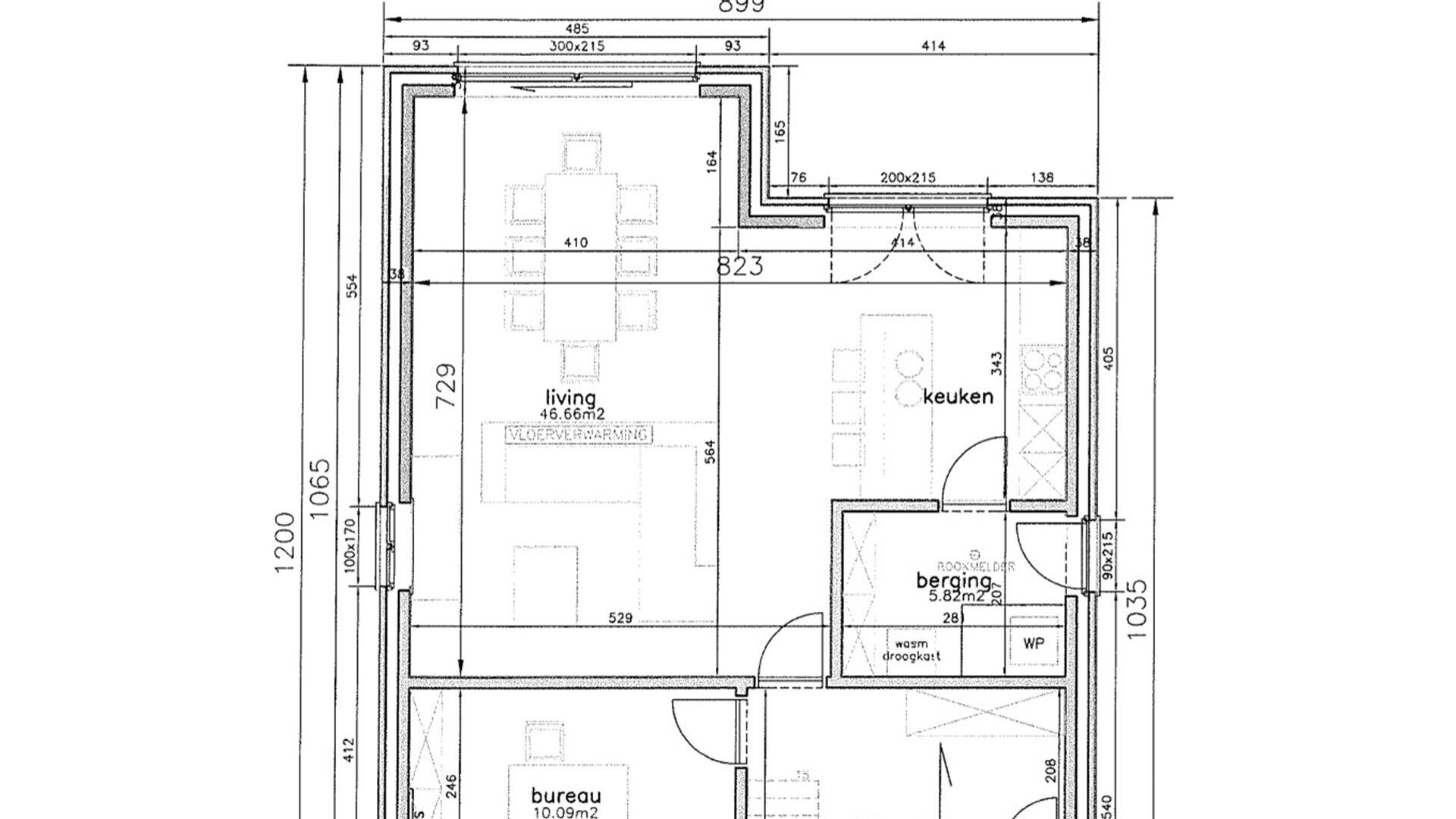
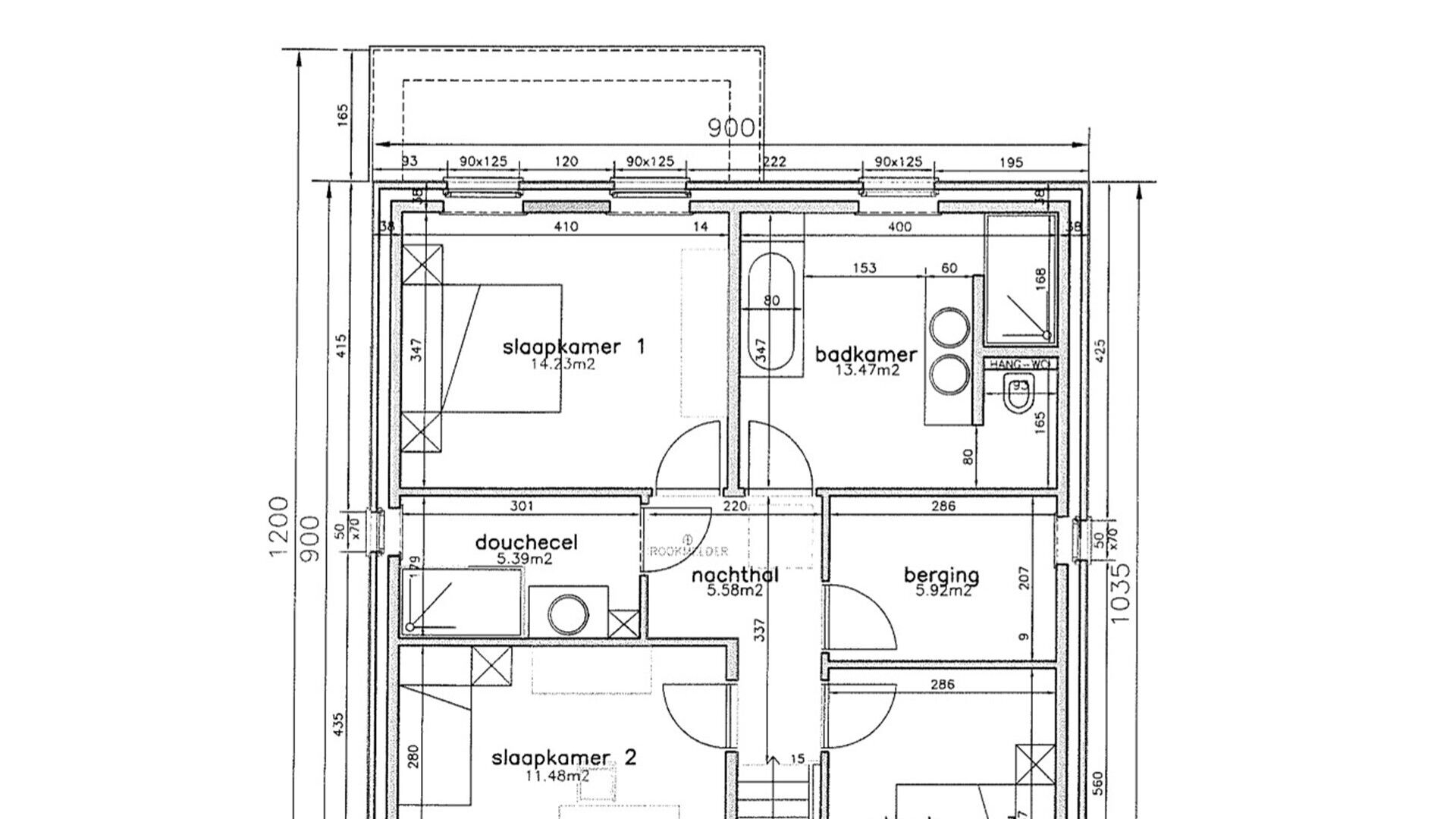
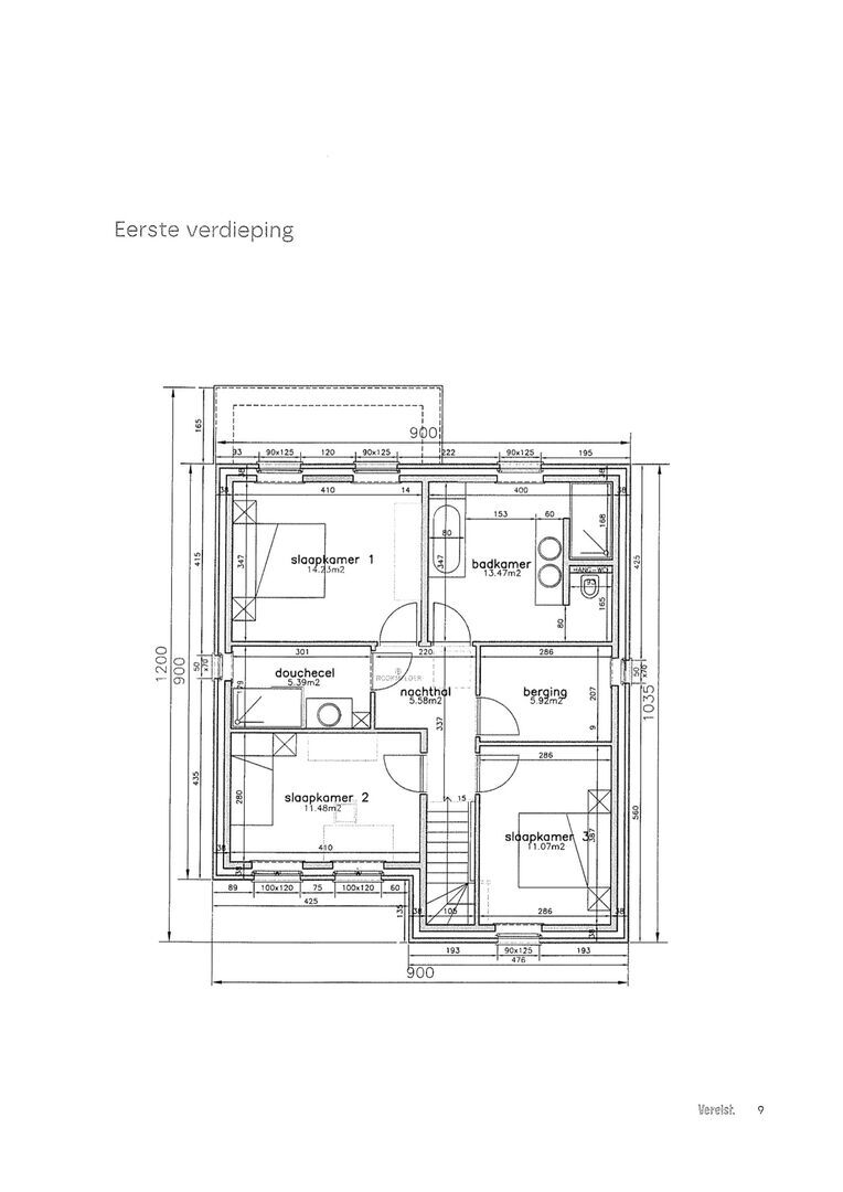
Ci-joint les plans d'un exemple de maison avec un grand hall d'entrée, un espace de vie spacieux de 46 m² avec une cuisine à l'ancienne, un bureau, un débarras, et à l'étage, 3 chambres, une salle de douche et une salle de bain et un débarras/ dressing. Sous le toit un grenier de +/- 40 m². Spécifications de base Verelst ;
Le prix indiqué est hors droits d'enregistrement sur le terrain et hors TVA sur la construction.
Non personnalisé sur terrain spécifique (réglementation, implantation, fondation,...)
Extrait des prescriptions relatives à la construction :
La profondeur maximale du bâtiment est de 15 m au rez-de-chaussée et de 12 m au premier étage ou de 13 m et 13 m, avec une bande non constructible de 3 m le long du côté exposé aux intempéries (sur le côté droit, la distance entre la route et les parcelles arrière est de 3 m). Le volume constructible total dépend du projet (à confirmer avec la commune). La hauteur autorisée sous la corniche est de 6 m (toit à deux versants entre 20° et 45°) ou de 7 m (toit plat). Un maximum de 50 % du jardin avant peut être pavé. Maximum 40% de pavage par rapport à 60% de verdure sur le terrain. Les directives générales suivantes s'appliquent :
- 21 m de l'axe de la route (et selon l'avis de Wegen & Verkeer) ;
- Largeur minimale de la façade : 8 mètres.
Plus d'informations sur info@ap-p.be ou en appelant le 078 /48 47 00.
3228 vues
- Prix net
- € 805.000
- Disponibilité
- A l'acte
- Surface habitable
- 180,0 m²
- Largeur de façade
- 9,0 m
- Surface au sol
- 925,0 m²
- Largeur du terrain
- 16 m
- Profondeur du terrain
- 61 m
- Jardin d'orientation
- Sud
- Orientation terrasse
- Sud
- Bureaux
- 10,0 m²
- Parking extérieur
- 2
- Permis de lotissement
- Oui
- Droit de préemption
- Oui
- Invocation
- Pas de correction juridique ou mesure administrative imposée
- Risque d'inondations
- Pas situé en zone inondable
- P-score
- C
- opmetingsplan.docx
- overstromingsrapport.pdf
- risicokaart-waterbeheerder.pdf
- voorbeeldwoning-4-gevels-klassiek-voor-en-achtergevels.pdf
- voorbeeldwoning-4-gevels-klassiek-1-verdieping.pdf
- voorbeeldwoning-4-gevels-klassiek-glv.pdf
- voorbeeldwoning-4-gevels-klassiek-zijgevels.pdf
- voorbeeldwoning-4-gevels-modern-1-verdieping.pdf
- voorbeeldwoning-4-gevels-modern-gevels.pdf
- voorbeeldwoning-4-gevels-modern-glv.pdf
Estimez votre remboursement mensuel
Vous payez chaque mois.
Ce calcul est purement informatif et non contractuel.
Je suis interessé


Philippe Leplat
philippe@ap-p.be
+32 78 48 47 00














