Voorbeeld van nieuwbouwwoning te bouwen met Verelst op deze prachtige bouwgrond gelegen op een paar honderd meter van de Britse school en de Afrika Museum van Tervuren.
Deze zuid gerichte grond heeft een breedte aan de straatkant van +/- 15.50 m op een diepte van +/- 61 m voor een totaal oppervlakte van +/- 925 m².
Onder voorbehoud van het verkrijgen van een stedenbouwkundig attest is deze grond geschikt voor het bouwen van een vrijstaande woning van maximum +/- 9,50 breed op 15 m diepte op het gelijkvloers en 12 m diepte op de verdieping. Eventueel tweede verdieping in het dak of 1 verdieping met plat dak ook mogelijk.
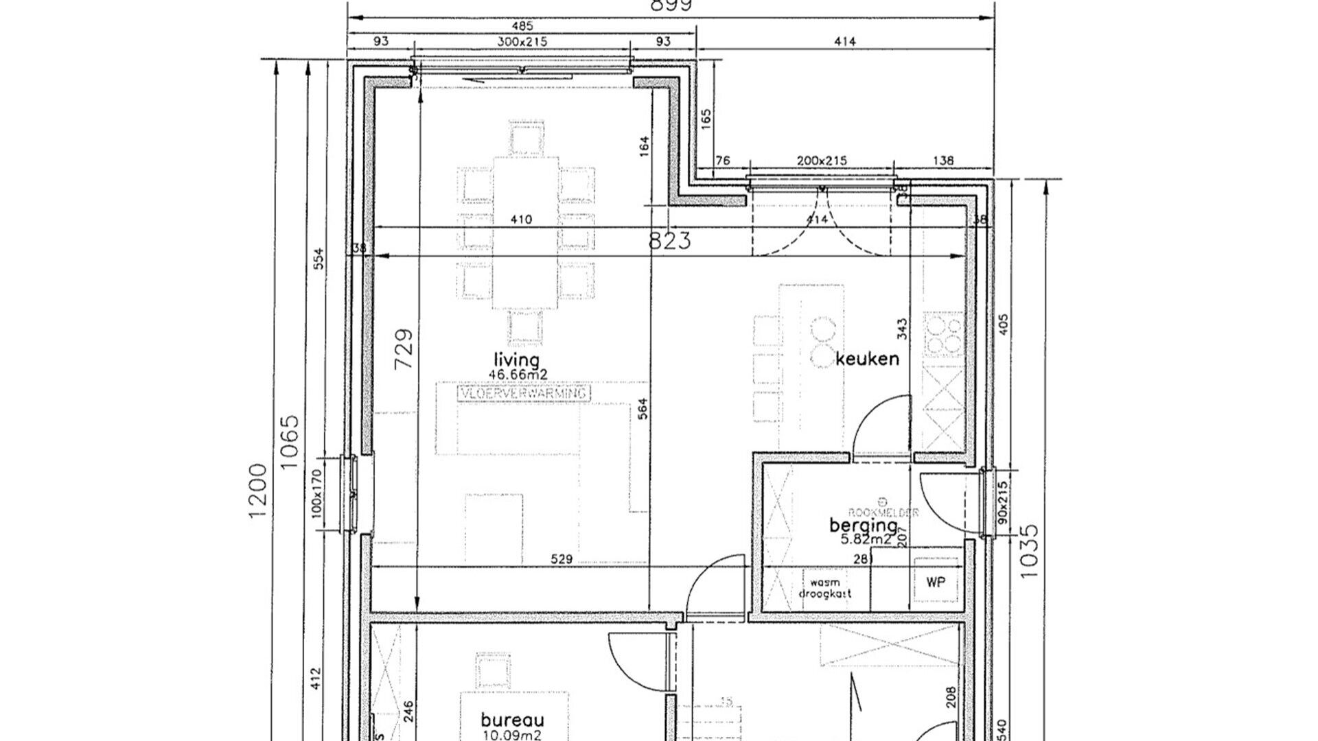
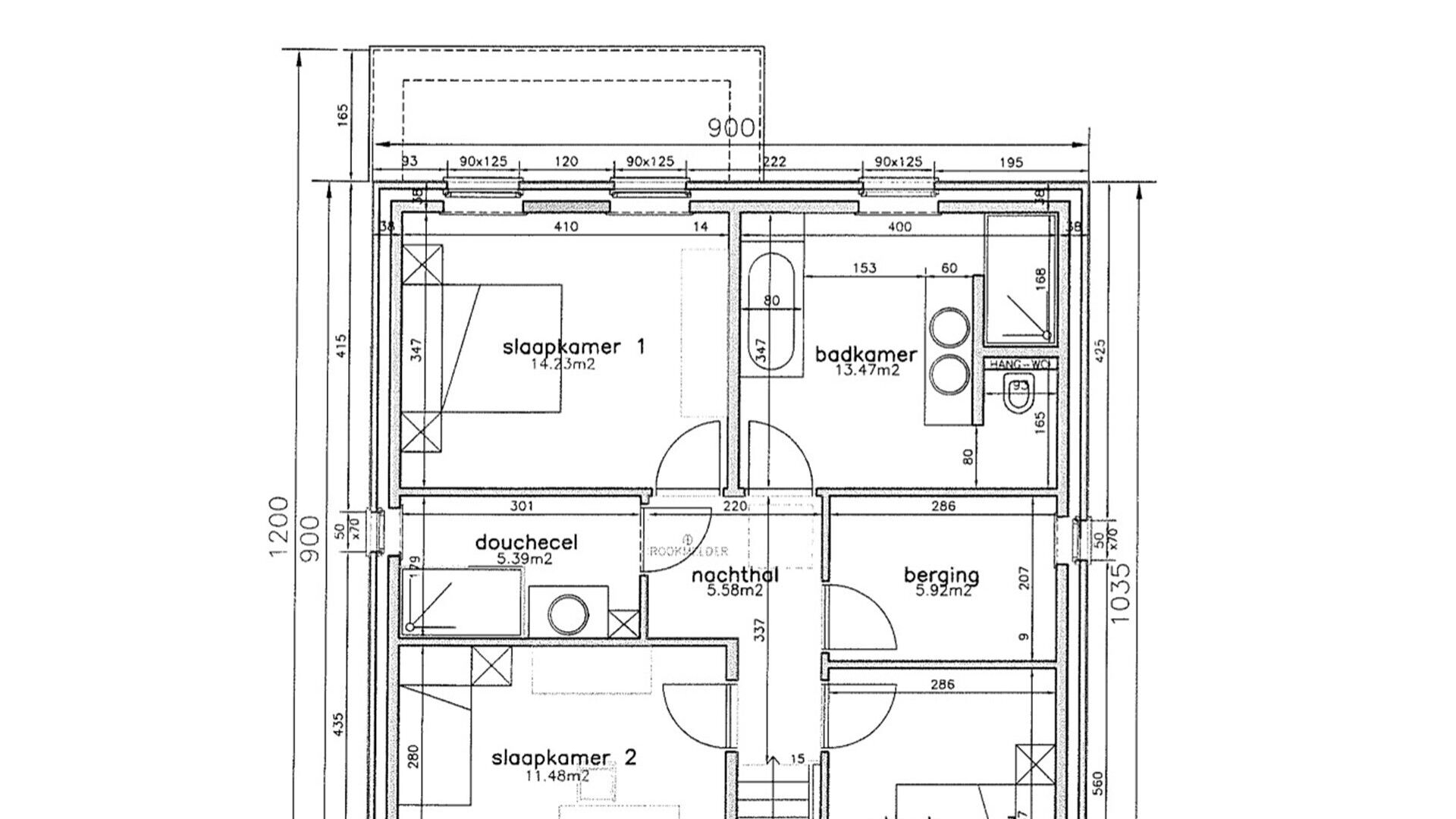
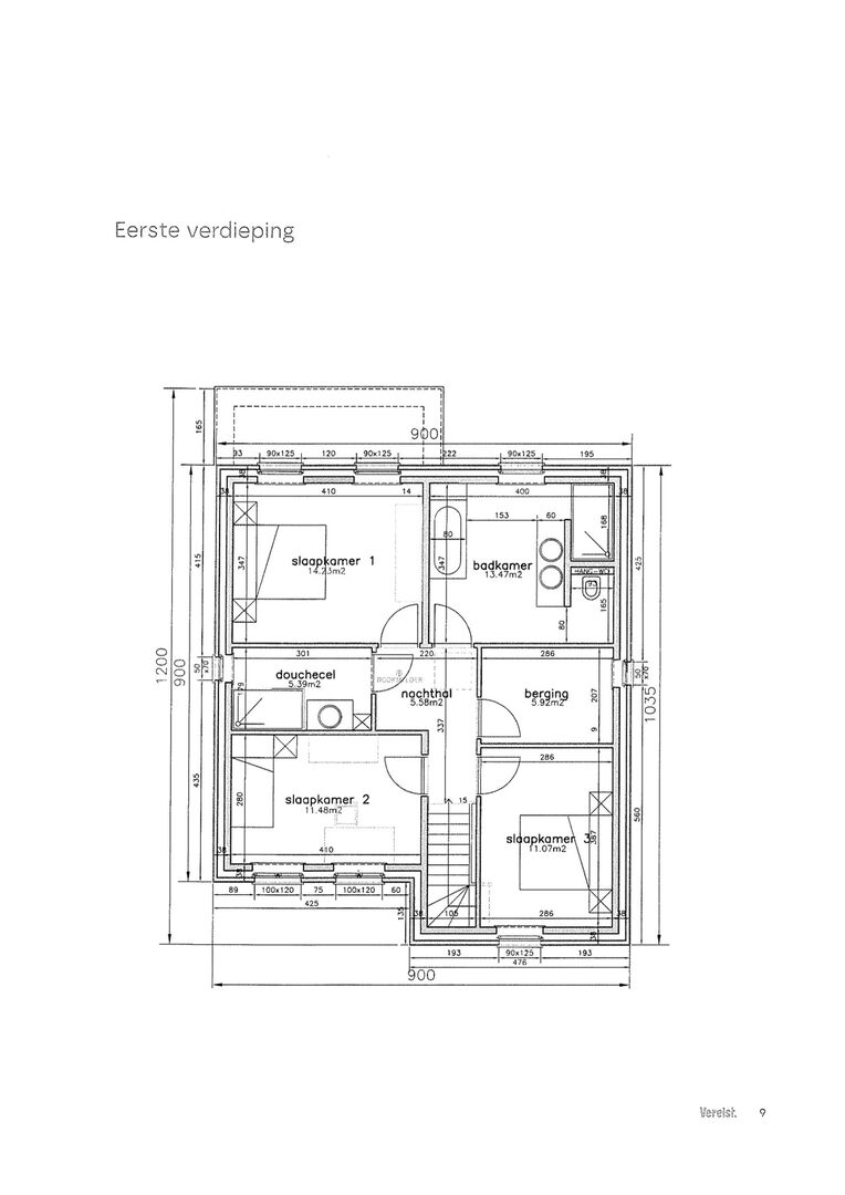
In bijlage de plannen van een voorbeeldwoning met een grote inkomhal, ruime leefruimte van 46 m² met open keuken, een bureau, een berging, en op de verdieping, 3 slaapkamers, een douchecel en een badkamer en een berging/ dressing. Onder het dak een zolder van +/- 40 m². Basis lastenboek Verelst;
De vermelde prijs is zonder registratie rechten op de grond en zonder btw op de bouw.
Niet gepersonaliseerd op specifieke grond (voorschriften, inplanting, fundering,...)
UIttreksel van de algemene voorschriften:
Maximale bouwdiepte is 15m op de begane grond en 12m op de verdieping ofwel 13m en 13 m, bouwvrije strook van 3m langs de weerzijde hebben (aan rechterzijde 3m afstand tot de weg naar de achtergelegen percelen). Het totale bebouwbare volume zal afhangen van het project(te bevestigen met de gemeente). De toegestane hoogte onder de kroonlijst is 6 m (zadeldak tussen 20° en 45°) of 7 m (plat dak). De voortuin mag voor maximaal 50% worden verhard. Maximaal 40% verharding tov. 60% groen op het perceel. Volgende algemene richtlijnen zijn van toepassing:
- 21m van de as van de weg (en volgens advies van Wegen & Verkeer);
- Minimale voorgevelbreedte 8m
Meer info's via info@ap-p.be of via 078 /48 47 00
3222 keer bekeken
- Nettoprijs
- € 805.000
- Beschikbaarheid
- Vanaf akte
- Bewoonbare opp.
- 180,0 m²
- Gevelbreedte
- 9,0 m
- Perceel opp.
- 925,0 m²
- Terreinbreedte
- 16 m
- Terreindiepte
- 61 m
- Oriëntatie tuin
- Zuid
- Oriëntatie terras
- Zuid
- Kantoren
- 10,0 m²
- Buitenparking
- 2
- Verkavelingsvergunning
- Ja
- Voorkooprecht
- Ja
- Dagvaarding
- Geen rechterlijke herstelmaatregel of bestuurlijke maatregel opgelegd
- Overstromingsrisico
- Niet gelegen in een overstromingsgevoelig gebied
- P-score
- C
- opmetingsplan.docx
- Overstromingsrapport.pdf
- risicokaart_waterbeheerder.pdf
- voorbeeldwoning 4 gevels klassiek voor en achtergevels.pdf
- voorbeeldwoning 4 gevels klassiek 1 verdieping.pdf
- voorbeeldwoning 4 gevels klassiek glv.pdf
- voorbeeldwoning 4 gevels klassiek zijgevels.pdf
- voorbeeldwoning 4 gevels modern 1 verdieping.pdf
- voorbeeldwoning 4 gevels modern gevels.pdf
- voorbeeldwoning 4 gevels modern glv.pdf
Schat uw maandelijkse afbetaling
Uw maandelijkse afbetaling zou bedragen.
Deze berekening is louter informatief en niet bindend.
Ik ben geïnteresseerd


Philippe Leplat
philippe@ap-p.be
+32 78 48 47 00














