Bouwgrond met voorbeeldwoning van Verelst. Een unieke kans voor het wonen in uw droomhuis!
Ontdek deze prachtig gelegen bouwgrond van 827 m² in een rustige, doodlopende straat in het groene Herent. Op dit perceel kan een open bebouwing gerealiseerd worden, volledig naar eigen wens of op basis van een voorbeeldwoning van Verelst een ideale start voor wie droomt van een stijlvolle, moderne woning op een toplocatie.
Belangrijkste troeven:
- Perceeloppervlakte: 827 m²
- Maximaal bebouwbare oppervlakte: 139 m²
- Bijgebouw tot 24 m² (zoals een veranda of bureau aan huis)
- Tuinhuis van maximaal 10 m²
- Bouwmogelijkheden: Twee bouwlagen toegestaan
- Voldoende parkeergelegenheid: Meerdere wagens kunnen eenvoudig voor de deur geparkeerd worden.
Ligging:
Rustig gelegen, op slechts 500 meter van de autosnelweg en vlak bij Gasthuisberg.
De bouwgrond bevindt zich in een aangename, groene woonwijk. Dankzij de doodlopende straat is er nauwelijks verkeer ideaal voor gezinnen of wie op zoek is naar rust. Tegelijk bent u vlot verbonden met omliggende steden zoals Leuven, Brussel en Mechelen.
De vermelde prijs is zonder registratierechten op de grond en zonder btw op de constructie.
Niet gepersonaliseerd op specifieke grond (voorschriften, inplanting, fundering,...)
Ook is er de mogelijkheid om de bouwgrond te kopen zonder de woning.
Indien u graag meer informatie wenst, aarzel niet contact op te nemen via 078 48 47 00 of info@ap-p.be
2458 keer bekeken
- Nettoprijs
- € 675.000
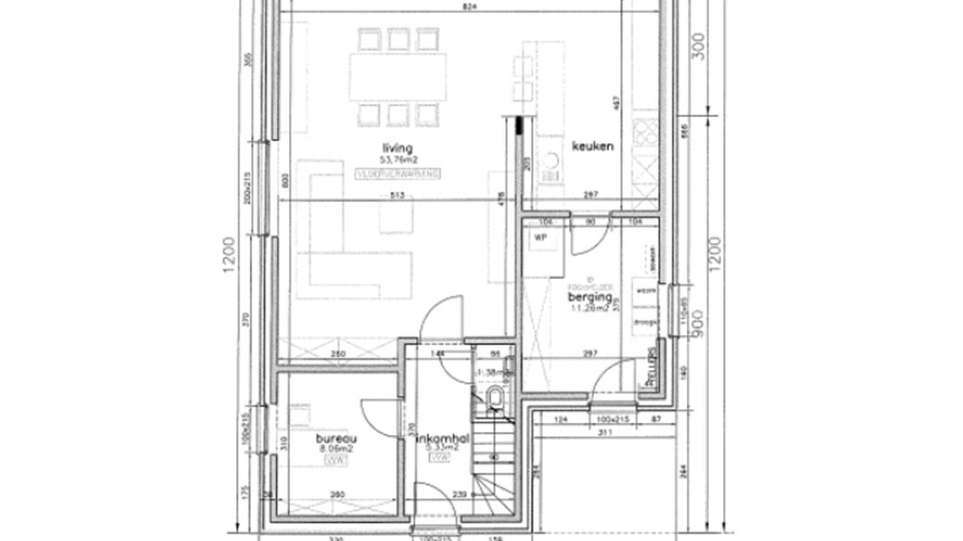
- Bewoonbare opp.
- 189,0 m²
- Constructie
- Open
- Bouwjaar
- 2025
- Perceel opp.
- 827,0 m²
- Terreinbreedte
- 41 m
- Terreindiepte
- 26 m
- Oriëntatie tuin
- Zuidoost
- Oriëntatie terras
- Zuidoost
- Slaapkamers
- 3
- Badkamers
- 1
- Toiletten
- 2
- Douchekamers
- 1
- Omgeving school
- 1.373 m
- Buitenparking
- 1
- Elektriciteit
- Ja
- Aansluiting gas
- Ja
- Telefoon
- Ja
- Aansluiting water
- Ja
- Bouwvergunning
- Nog niet aangevraagd
- Verkavelingsvergunning
- Ja
- Voorkooprecht
- Nee
- Dagvaarding
- Nog niet aangevraagd
- As-built attest
- Nog niet aangevraagd
Schat uw maandelijkse afbetaling
Uw maandelijkse afbetaling zou bedragen.
Deze berekening is louter informatief en niet bindend.
Ik ben geïnteresseerd


Luca Busseniers
luca@ap-p.be
+32 78 48 47 00









